Eski Eser Restorasyon
Tarihin izlerini geleceğe taşıyoruz. Kültürel mirasımızın en değerli parçaları olan tescilli yapıların; özgün dokusuna sadık kalarak, bilimsel yöntemler ve titiz bir işçilikle restorasyon süreçlerini yönetiyoruz.
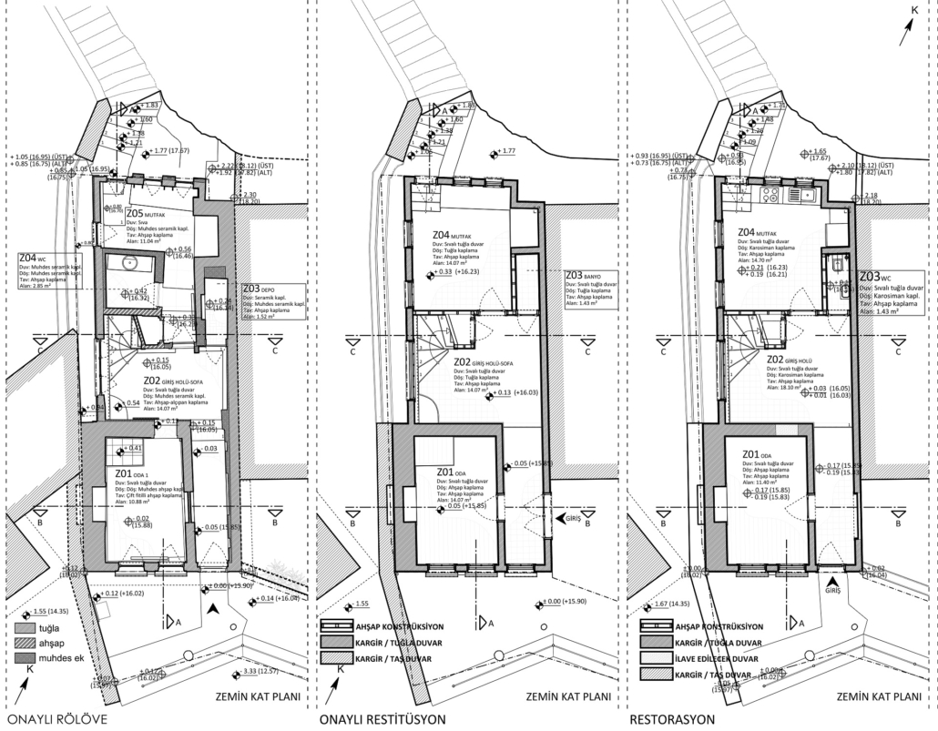
Restorasyon & Rekonstrüksiyon Uygulama
Zamanın yıprattığı yapıları yeniden canlandırıyor veya tamamen yok olmuş kültürel değerleri arşiv belgelerine dayanarak aslına uygun şekilde (rekonstrüksiyon) inşa ediyoruz.
Kentsel Dönüşüm Projeleri
Daha güvenli ve modern bir gelecek için eskiyi yeniliyoruz. Riskli yapı analizinden başlayarak; hak sahiplerinin beklentilerini karşılayan, sürdürülebilir, depreme dayanıklı ve şehir dokusuna değer katan kentsel dönüşüm projeleri geliştiriyoruz.
Mimari Ruhsat Projeleri
Fikirlerinizi yasal zeminle buluşturuyoruz. Fonksiyonel, estetik ve yönetmeliklere tam uyumlu mimari projeler üreterek; imar durumu analizi, avan proje ve uygulama projelerinin ruhsatlandırma süreçlerini profesyonel ekibimizle takip ediyoruz.
İç Mimari Tasarım
Mekanları sadece tasarlamıyor, onlara karakter katıyoruz. Kullanıcı deneyimini merkeze alan, konfor ve estetiğin harmanlandığı iç mekan çözümleri sunuyoruz.
Uzman Kadro
Restorasyon ve modern mimari konusunda deneyimli ekip.
Bütünsel Yaklaşım
Projelendirmeden anahtar teslim uygulamaya kadar tam hizmet.
Estetik & Fonksiyon
Sadece güzel görünen değil, yaşayan mekanlar.
Çengelköy-Çukurova Liparis Evleri
Uskumruköy Villaları
Uskumruköy Greenville Villaları
Beykoz Z. O. Evi İnstinye Rölöve Restitüsyon
Fatih Sultan Ahmet Tarihi Dokuda Otel Projesi
İstinye Rölöve Restitüsyon Restorasyon Uygulama
Beykoz Villa Projesi
Beşiktaş Kentsel Dönüşüm Avan Proje
İLETİŞİM
Adres
Esenevler Mahallesi Yunusemre Caddesi Sevilay Sokak
No:10-12 D:9 Kat:2 Ümraniye / İstanbul
Telefon
0 540 557 02 24
Çalışma Saatleri:
Pazartesi-Cuma: 8:00-19:00
Cumartesi: 8:00-14:00
Pazar: Kapalı
